Vollautomatische WickelmaschineWMS VT Automatic
WMS VT sind die höchsten Modelle der WMS-Reihe. Vollautomatische, leistungsfähige und intelligente Wickelmaschine, die zur Eingliederung in Förderbahnen konstruiert ist. Sie ist für Betriebe mit mittlerer bis hoher Verpackungskapazität bestimmt. Die Basisausführung der WMS-VT-Maschinen ist die WMS-Säule mit Förderbahn und wählbarer Folienverschlusseinrichtung.
35Pal./Std.
20programme
1500Kilogramm Technische Eigenschaften
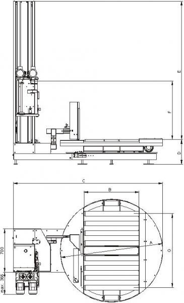
WMS VT Automatic ist eine vollautomatische Maschine, die in Förderbahnen integriert wird. Die Maschine besteht aus der Drehteller mit angetriebenen Rollenbahn, dem Maschinenbasis mit Drehtellerantrieb und dem Mast zur Bewegung des Folienschlittens und des Niederhalters (wenn die Maschine mit diesem Niederhalter ausgestattet ist). Im Steuerungssystem der Maschine können 20 Programme gespeichert werden, in diesen Programmen können die einzelnen Verpackungsparameter eingestellt werden. Die Maschine kann nach der Zuführung der Palette mit Waren den Verpackungszyklus automatisch starten, diese Palette verpacken und das Signal vom abgeschlossenen Verpackungsvorgang an die Steuerung der Förderbahn ausgeben und die Palette zur Weiterverarbeitung schicken.
Anwendung
WMS VT Automatic ist für die Integration in Förderbahnen in Betrieben mit mittlerer und höherer Verpackungskapazität bestimmt. Sie garantiert perfekte Warenfixierung auf der Palette bei minimalem Packfolienverbrauch.
| Verpackungskapazität (Pal./Std.): | 35 |
| Größe der Drehscheibe (mm): | 900 |
| Anzahl der Programme: | 20 |
| Max. Verpackungshöhe (mm): | 2240 |
| Größe der verpackten Palette (mm): | 800x1200 |
| Palettenhöhenabtastung: | durch Fotozelle |
| Drehzahlregelung „Soft START“ | durch Umrichter |
| Folienvorrecksystem: | 1- motorige Folienvorreckung |
| Drehzahl des Drehtellers (U/min): | 10 |
| Tragfähigkeit des Drehtellers (kg): | 1500 |
| Grundriss der Maschine BxL (mm): | 1670x2435 |
| Luftdruck (MPa): | 0,6 - 1,5 |
| Betriebsspannung (V): | 3x400, 50Hz |
| Elektrischer Anschlusswert (kVA): | 3,5 |
ZUBEHÖR
Wählbare Modifikationen
| Erhöhung der Tragfähigkeit des Drehtellers (kg): | 2500 |
| Verlängerten Mast für max. Höhe der Verpackung (mm): | 3000 |
| Folienvorrecksystem: | 2- motorige Folienvorreckung |
Optionales Zubehör
- Basis der Maschine für Breite des Rollbahn 1100, 1300 mm
- Basis der Maschine für Kettenabstand des Kettenförderers 700,1000/2,1000/3 mm
- Typen von Förderern : Rollenbahn mit/ohne Antrieb, Kettenband
- Definierter Stop des Drehtellers in zwei Richtungen
- Stufenlose Drehzahlregulierung der Drehtellers
- Automatisches Folienglätten
- Automatisches Folienschweißen
- Elektrischer Niederhalter von instabilen Waren
- Vollautomatischen Deckblattaufleger
- Ausführung in Sonderfarbe




